リブリ・Sunny

6.6万円 管理/共益費 5,000円

東京都葛飾区鎌倉3丁目

京成本線「京成小岩」駅徒歩8分

北総鉄道「新柴又」駅徒歩9分

京成金町線「柴又」駅徒歩18分

価格
6.6万円 管理/共益費 5,000円
間取り/面積
1R/24.92㎡
所在地
東京都葛飾区鎌倉3丁目
築年
2010年3月(築15年)
駐車
-
交通

京成本線京成小岩」駅 徒歩8分

北総鉄道新柴又」駅 徒歩9分

京成金町線柴又」駅 徒歩18分

リブリ・Sunnyの基本情報

物件名
リブリ・Sunny
価格
6.6万円
管理/共益費
5,000円
築年月
2010年3月(築15年)
総戸数
-
所在地
東京都葛飾区鎌倉3丁目
交通

京成本線京成小岩」駅 徒歩8分

北総鉄道新柴又」駅 徒歩9分

京成金町線柴又」駅 徒歩18分

リブリ・Sunnyの詳細情報

設備条件
  • CATV
  • インターネット対応
  • 宅配ボックス
  • 24時間緊急通報システム
設備(その他)
    -
駐車場/月額
-/-
用途地域
-
戸数
- / -
取引態様
仲介

リブリ・Sunnyで募集中の物件

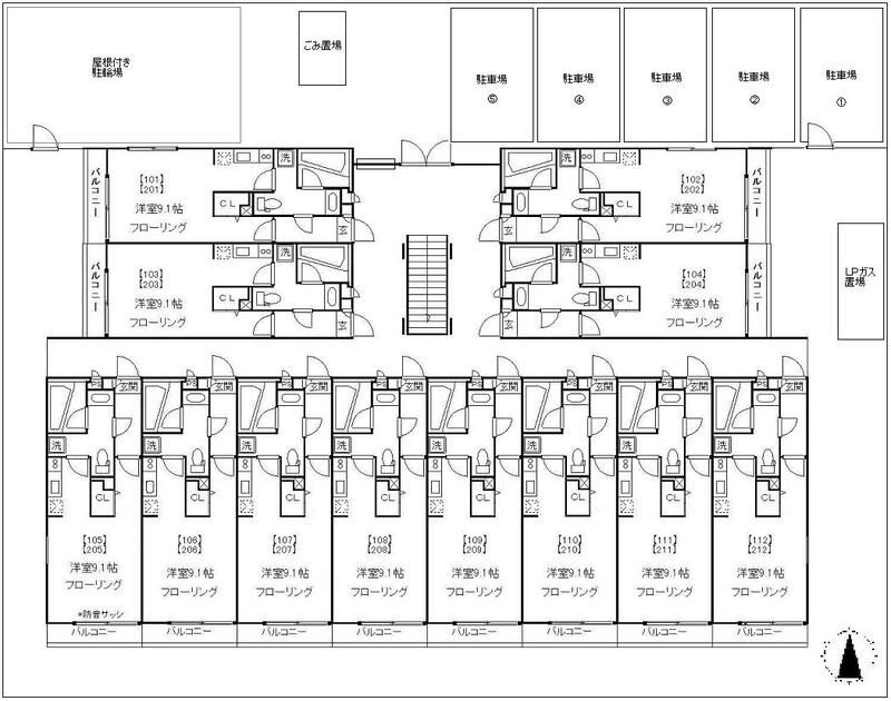
  1. 1階

    7.53坪 (24.92㎡)

    6.6万円(8764.94円/坪)

周辺施設

  • ミニストップの画像

    コンビニエンスストア

    ミニストップ

    389m(5分)

  • 郵便局の画像

    郵便局

    郵便局

    507m(7分)

  • アコレの画像

    スーパー

    アコレ

    529m(7分)

  • リブレ京成新柴又店の画像

    スーパー

    リブレ京成新柴又店

    566m(8分)

  • セブンイレブンの画像

    コンビニエンスストア

    セブンイレブン

    675m(9分)

  • セブン‐イレブン 北小岩店の画像

    コンビニエンスストア

    セブン‐イレブン 北小岩店

    694m(9分)

  • マツモトキヨシ 新柴又駅前店の画像

    ドラッグストア

    マツモトキヨシ 新柴又駅前店

    809m(11分)

近隣の物件

  1. 葛飾区鎌倉4丁目

    1R (16.00㎡)

    6.2万円

  2. 葛飾区西新小岩4丁目

    1R (16.53㎡)

    5.8万円

  3. 葛飾区細田1丁目

    2LDK (61.50㎡)

    13.4万円

  4. 葛飾区新小岩1丁目

    1K (29.19㎡)

    10.8万円

リブリ・Sunny

お気軽にお問い合わせください

LINEからお問い合わせ 無料お問い合わせ

いい部屋ネット 浦安店/株式会社ハナホーム

047-306-6016

10:00~18:00

(休:夏季休暇・年末年始休暇)